|
|
|
E. F. Central do
Brasil (1934-1975)
RFFSA (1975-1983)
CBTU (1983-1992)
CPTM (1992-1999) |
ENGENHEIRO
TRINDADE
Município de São Paulo, SP |
| Variante de Poá - km 494,695 (1928) |
|
SP-0333 |
| Altitude: 731 m |
|
Inauguração: 01.01.1934 |
| Uso atual: demolida |
|
com trilhos |
| Data de construção do
prédio atual: 1934 |
| |
|
|
| |
| HISTORICO DA LINHA: A variante
de Poá, também chamada de variante de Calmon Viana, teve a construção
iniciada em 1921, mas a linha foi aberta somente em 1/5/1934, depois
de uma interrupção de oito anos nas obras. Ela tinha um traçado mais
suave em termos de curvas e aclives quando comparada com a linha original
que seguia de Poá ao Tatuapé, no ramal de São Paulo, daí sua construção.
Começava na estação de Calmon Viana e terminava na Quinta Parada (Eng.
Gualberto) do ramal de São Paulo. Com o tempo, foi se transformando
em linha de trens de subúrbio, os trens metropolitanos de hoje, e
é uma das linhas mais movimentadas da CPTM em São Paulo, embora com
os piores trens. |
| |
A ESTAÇÃO: A estação
de Engenheiro Trindade foi inaugurada quando a linha começou
a operar, em 1934, ao contrário das outras estações,
que haviam sido inauguradas oito anos antes e permaneceram abandonadas.
O prédio original é o mesmo de 1999, apenas a plataforma fora ampliada
em 1973.
Havia um projeto para se construir outra estação
em 1992, que, por algum motivo, não foi executado (veja nesta
página, mais abaixo).
Em 1999, a estação foi desativada pela CPTM, depois de oito
depredações seguidas em onze meses.
Foi abandonada, depredada e finalmente
demolida.
"Em 22 de janeiro de 2007 estive
na extinta estação Engenheiro Trindade. As extremidades das escadarias
de aço foram cortadas a maçarico: permanece a passarela, porém sem
nenhum acesso devido à remoção das escadarias, o beco que dava acesso
à escadaria principal foi fechado com um muro e a bilheteria, a cobertura
e metade da plataforma já foram demolidos" (Erick Tamberg,
02/2007).
 |
1940
À ESQUERDA: Atropelamento próximo à estação (Folha da Manhã,
6/8/1940). |
|

|
1959
À ESQUERDA: Quebra-quebra na estação
e em trens que nela estavam (Folha da Manhã,
27/11/1959).
|
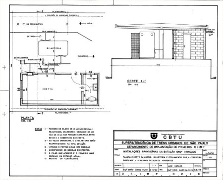
ACIMA: Projeto de construção de uma
nova estação para Engenheiro Trindade, de 1992. Nunca
foi executado (CBTU).
(Fontes: Ralph M. Giesbrecht, pesquisa local; Ricardo
Corte; Gutierrez L. Coelho; Alex Ibrahim; Luiz Rafael; Erick Tamberg;
CBTU; Folha da Manhã, 1958/1959; O Estado de S. Paulo, 1999;
Max Vasconcellos: Vias Brasileiras de Communicação,
1928; Guia Geral das Estradas de Ferro do Brasil, 1960; Mapa - acervo
R. M. Giesbrecht) |
| |
|
|

Na plataforma de Engenheiro Trindade, seguranças conversam,
após a depredação em fevereiro de 1999.
Foto de O Estado de S. Paulo |

Em 12/2001, o acesso fechado, a estação depredada.
Foto Ricardo Corte |

Em 13/04/2002, as ruínas da estação de
Engenheiro Trindade. Foto Luiz Rafael |

Plataformas da estação ainda de pé em 2006.
Foto Alex Ibrahim |

A escada terminando em nada e os tijolos da demolição
ainda existem em 07/2007. Foto Erick Tamberg |
|
|
| |
|
|
| Atualização:
03.12.2018
|
|